Espacios que salvan vidas: Diseño y seguridad en emergencias hospitalarias
Este trabajo ha sido desarrollado por las arquitectas Cristina Geraldine Flores y Flavia Aldana Sánchez luego de su rotación por el Servicio de Emergencias del Instituto Cardiológico en Argentina, en el marco de la Residencia de Arquitectura Hospitalaria.
El Servicio de Emergencias es uno de los espacios más críticos dentro del hospital, diseñado para brindar atención médica inmediata y continua las 24 horas a pacientes que presentan situaciones de urgencia o riesgo vital. Su organización debe garantizar rapidez, seguridad y eficiencia, integrando infraestructura especializada, equipamiento adecuado y disponible según normativa, más un equipo multidisciplinario preparado para actuar frente a emergencias médicas.
En el ámbito hospitalario, una emergencia se define como toda situación médica que requiere atención inmediata para evitar la muerte, secuelas graves o discapacidad permanente. Se trata de eventos inesperados y potencialmente mortales, desencadenados por accidentes, enfermedades agudas o complicaciones de patologías preexistentes.
La Organización Mundial de la Salud (OMS) diferencia entre emergencia —riesgo de vida real, donde el tiempo de respuesta es menor a una hora— y urgencia —riesgo de vida potencial, que admite un margen de hasta seis horas para su resolución.
Esta distinción es fundamental en el diseño hospitalario, ya que orienta la categorización, el flujo de pacientes y la disposición de los espacios.

Imagen 01 - Elaboración propia, según conceptos de la OMS
Al abordar la arquitectura a los espacios destinados a la asistencia de emergencias, resulta fundamental destacar ciertos lineamientos y conceptos esenciales que deben considerarse durante su planificación. Estos ámbitos requieren un diseño que responda con eficacia las demandas propias de la atención crítica.
En Argentina, el Programa Nacional de Garantías de Calidad en Atención Médica del Ministerio de Salud de la Nación (Resol. 428/2001 y Resol. 2211/2015) establece directrices para la organización de los servicios de emergencias. Entre los puntos principales se destacan:
- Circuito asistencial continuo: Recepción → Triage → Shockroom → Observación → Resolución (alta, internación o derivación).
- Áreas mínimas: recepción y admisión, consultorios rápidos, shockroom, salas de observación, área de procedimientos, acceso para ambulancias.
- Niveles de complejidad:

Imagen 02 - Programa Nacional de Garantías y Calidad en Atención Medica. - Resol 428/2001
En este caso el Instituto de Cardiología de Corrientes, del cual hablaremos más adelante, se clasifica en Nivel III, en atención de emergencias, dada su capacidad de resolución de patologías cardiovasculares de alta complejidad.
Por su naturaleza crítica, la atención de emergencias exige equipos especializados y protocolos estandarizados que permitan actuar con rapidez, priorizar a los pacientes según su gravedad (triage) y garantizar la estabilización y el tratamiento inmediato.

Imagen 03 - Criterio de evaluación de triage del Instituto de Cardiología
Caso de Estudio
Dentro de la Residencia de Arquitectura Hospitalaria, como residentes de primer año tuvimos la oportunidad de realizar la rotación en el Servicio de Emergencias del Instituto de Cardiología, en Argentina. Este centro, es un referente en la atención de patologías cardiovasculares, brindando cobertura no solo a la comunidad local sino también al país y países limítrofes. Durante la misma, pudimos vivenciar de cerca el proceso de atención y tratamiento de la unidad, comprendiendo la dinámica de trabajo, los flujos de pacientes y la organización del espacio en situaciones de emergencia.
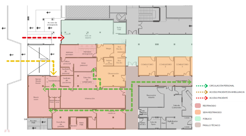
Este servicio está ubicado en planta baja y cuenta con 586 m² diseñados para garantizar una atención rápida y segura a pacientes en estado crítico. Dispone de dos accesos principales: uno para el ingreso directo de pacientes ambulatorios y otro exclusivo para ambulancias, lo que asegura una circulación diferenciada y eficiente.
Planta General del servicio del Instituto de Cardiología
En cuanto a su organización interna, el servicio, integra áreas clave como:
- Triage: clasificación inmediata de pacientes según gravedad.
- Shockroom: área central de atención crítica.
- Salas de observación e internación de urgencia.
- Áreas de apoyo: admisión, depósito de insumos, espacios técnicos.
Todos estos espacios conectados mediante circulaciones restringidas y técnicas que favorecen la operatividad y la bioseguridad.

Imagen 04 - Plano de la planta de emergencias y circuito de circulación” – Instituto de Cardiología, Argentina
Relación de Emergencias con el resto del hospital
Este servicio ocupa un lugar central dentro del funcionamiento hospitalario, ya que actúa como puerta de entrada principal para pacientes que requieren atención inmediata. Su efectividad depende de una estrecha interrelación con las demás áreas del hospital, garantizando una respuesta rápida, coordinada y segura.
Mantiene conexión directa con áreas críticas, como Unidad de Terapia Intensiva (UTI), quirófanos, diagnóstico por imágenes, laboratorio, hemodinamia, banco de sangre e internación general, lo que permite una atención continua desde la admisión hasta la estabilización o internación del paciente. Asimismo, se articula con los servicios de farmacia, central de esterilización, mantenimiento y limpieza, que aseguran el soporte técnico y logístico necesario para su funcionamiento ininterrumpido.
A nivel operativo, también se integra con el sistema de derivaciones y emergencias extrahospitalarias, fortaleciendo la red de atención sanitaria. Esta interdependencia funcional entre áreas es clave para ofrecer una atención oportuna, eficiente y de calidad, minimizando tiempos de respuesta y optimizando los recursos hospitalarios.

Imagen 05 - Elaboración propia. Esquema de Relaciones del servicio – Instituto de Cardiología, Argentina
El flujo de pacientes en emergencias es clave para una atención rápida y segura. Un recorrido organizado permite identificar y atender primero a los casos críticos, optimizar recursos y reducir riesgos para pacientes y personal. Según la Resolución 428/2001 del Programa Nacional de Garantías y Calidad en Atención Medica de la República Argentina, la circulación debe estar diseñada para separar pacientes, personal e insumos. Este esquema asegura la separación de flujos, minimizando así, los riesgos de contaminación y mejorando su funcionalidad.

Imagen 06 - Programa Nacional de Garantías y Calidad en Atención Medica. - Resol 428/2001
El recurso humano clave del funcionamiento de la unidad
Este servicio, cuenta con un recurso humano especializado con médicos de staff, residentes de las especialidades médicas y de enfermería especializada, personal auxiliar, administrativo y de apoyo técnico, distribuidos en turnos para asegurar cobertura las 24 horas. Este modelo multidisciplinario permite una atención integral, desde la clasificación inicial del paciente hasta su estabilización, derivación o internación en áreas críticas como la Unidad de Cuidados Intensivos Coronarios, Unidad de Terapia Intensiva o el servicio de Cirugía Cardiovascular.

Imagen 07 - Elaboración propia, organigrama del personal de unidad de emergencias
Para seguir leyendo este artículo debe iniciar sesión o darse de alta en el portal.
Para poder escribir un comentario debe iniciar sesión o darse de alta en el portal.




