Urgencias Hospital Clínic – Sede Plató
Reforma y reorganización del área de urgencias y acceso general
La intervención se realiza en la planta baja del edificio principal de una de las sedes del Hospital Clínic de Barcelona, situado en la calle Plató en un edificio de 100 años de antigüedad, con ampliaciones y adecuaciones en varias zonas.
Se plantea la reforma integral del área de urgencias y del acceso general con el objetivo de optimizar su funcionamiento, mejorar las circulaciones y reforzar la calidad espacial tanto para pacientes como para profesionales. Así como sectorizar correctamente esta zona del edificio, cumpliendo los requerimientos del CTE a nivel de sectorización de incendios y evacuación.
La dificultad principal de este proyecto y de la ejecución de la obra, radica en la realización de los trabajos previstos, secuenciando diferentes y múltiples fases de intervención programadas detalladamente con el hospital, manteniendo la totalidad del edificio en uso y los servicios anexos con actividad constante coordinando siempre las afectaciones directas de la intervención y las parciales, que han surgido durante la realización de los diferentes trabajos.
El global de servicios afectados por la obra ha sido relevante, ya que muchos están centralizados en la planta baja del hospital de esta sede. Se ha garantizado y planificado sin afectación su funcionamiento permanente y para ello se han mantenido siempre operativos los accesos, el pasillo principal de comunicaciones de pacientes y circulación de literas del SEM, las zonas de espera, así como el control de recepción-admisiones general del hospital reubicando los mismos en dos subfases. En este contexto y anexos a la zona de obra han permanecido en pleno uso y estricta programación los quirófanos de C.M.A su sala de REA y espacios anexos vitales, así como la U.C.I de la sede también situada en la planta baja y anexa a las obras. Todos los servicios se han mantenido activos durante toda la obra.
Esta situación global de obra versus atención asistencial multiservicios, ha obligado a potenciar, controlar, gestionar de forma muy activa y al detalle el trabajo de control diario en obra, proceso de ejecución y la comunicación con coordinación de los servicios o unidades afectadas durante los 9 ½ meses de ejecución de los trabajos.
El proyecto, desarrollado por CANTALLOPS-VICENTE ARQUITECTES, actúa sobre una superficie de 730,75m² y reorganiza completamente la distribución existente manteniendo, sin embargo, la lógica funcional original del centro. La propuesta establece una secuencia clara de espacios que transita desde ámbitos públicos hacia áreas progresivamente más restringidas, facilitando la comprensión del conjunto y mejorando la eficiencia asistencial.

Relación con el edificio existente
La actuación se integra en la planta baja del edificio sin alterar su envolvente ni la configuración estructural principal. El proyecto respeta los accesos existentes y se adapta a la posición de los elementos portantes, que condicionan de manera determinante la nueva organización espacial.
El acceso general conecta directamente con el vestíbulo principal del hospital, desde donde se articula la entrada al área de urgencias. Este ámbito inicial concentra los usos más públicos: recepción, admisiones, triage y salas de espera, estableciendo una transición progresiva hacia las zonas asistenciales.
A lo largo del distribuidor principal se organizan también espacios complementarios como áreas administrativas, sala de familias, núcleo de baños públicos y zonas de servicio. En el extremo más alejado se sitúan las conexiones con otras áreas del hospital, incluyendo la UCI y los espacios de diagnóstico, garantizando la continuidad funcional del conjunto sanitario.
Organización y circulaciones
El proyecto se estructura mediante un sistema claro de franjas horizontales que ordenan el programa en función del grado de privacidad y restricción. Este esquema permite una lectura intuitiva del espacio y facilita tanto la orientación de los usuarios como el trabajo del personal sanitario.
Se distinguen dos grandes ámbitos:
Ámbito General (público y semipúblico)
Incluye el vestíbulo, recepción, admisiones, sala de espera y triage. Se concibe como un espacio continuo y abierto, donde la transparencia y la iluminación contribuyen a generar una atmósfera acogedora y comprensible.
Ámbito de Urgencias (asistencial restringido)
Se accede a través de un filtro que actúa como transición entre lo público y lo clínico. A partir de este punto, la organización se desarrolla mediante una circulación en forma de U que estructura el conjunto.
Los recorridos están claramente jerarquizados:
- Pacientes: acceso desde recepción hacia triage y boxes asistenciales
- Personal sanitario: circulación interna optimizada alrededor del control
- Servicios: itinerarios independientes vinculados a zonas de soporte
- Familias: acceso controlado a áreas de espera y atención
Esta organización evita cruces innecesarios, mejora la seguridad y optimiza los tiempos de atención.

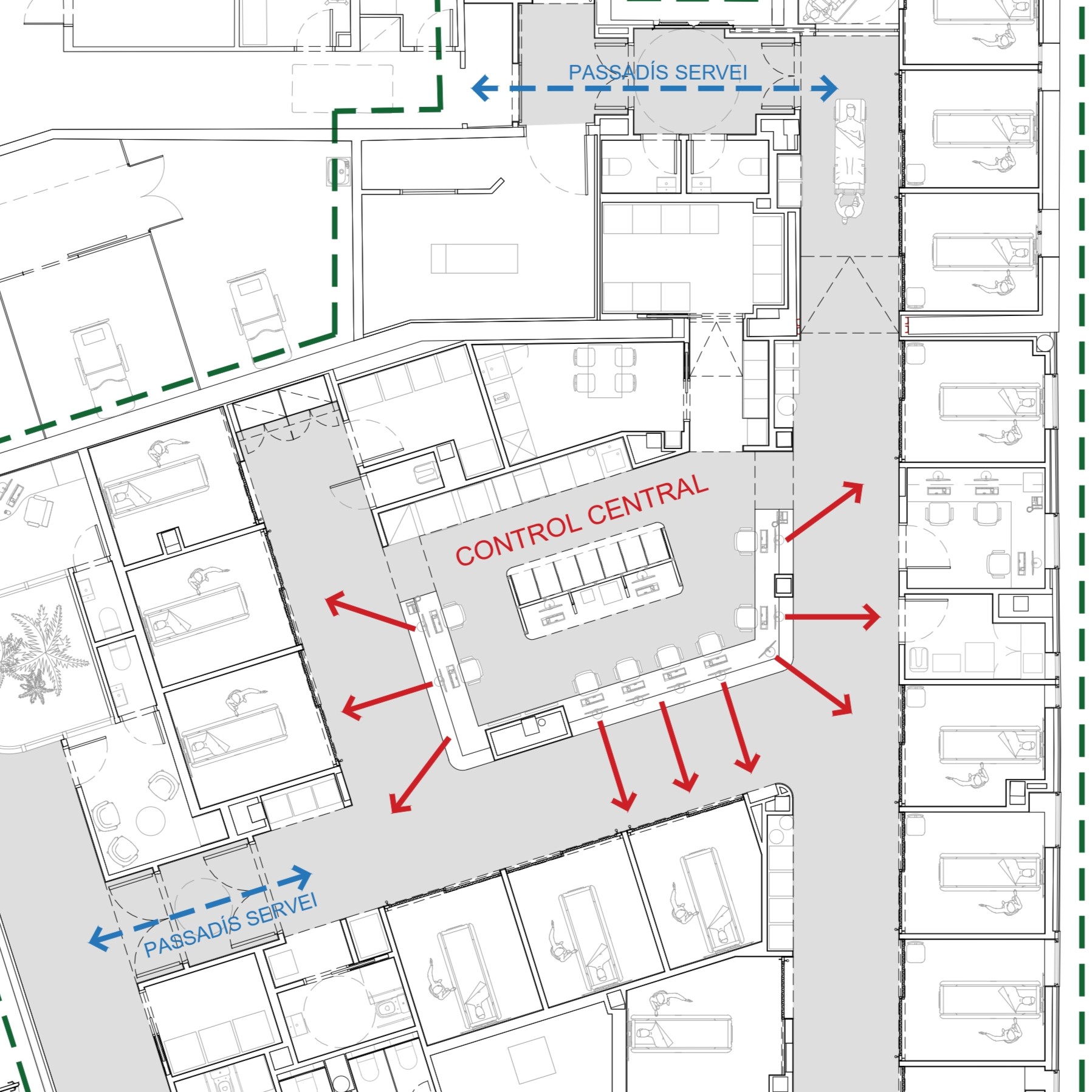
Área asistencial y control central
El corazón del proyecto es el control de enfermería centralizado, alrededor del cual se disponen los 18 boxes asistenciales. Esta configuración permite una supervisión visual directa de la mayor parte de los pacientes y facilita las tareas de cuidado, vigilancia y coordinación.

El programa asistencial incluye:
- 1 box de reanimación (RCP) próximo al acceso.
- 15 boxes estándar.
- 2 boxes de aislamiento con baño propio.
Los boxes se distribuyen combinando posiciones en fachada —que aprovechan la luz natural— con otros situados en el interior, orientados hacia el control central. Esta dualidad permite equilibrar calidad ambiental y eficiencia funcional.
El control de enfermería se organiza perimetralmente, concentrando los puntos de trabajo y dejando en el núcleo central las áreas de medicación y almacenamiento especializado. Este espacio integra los sistemas de monitorización necesarios para la gestión asistencial.
Las áreas de soporte (brutos, almacenes, office, limpieza) se sitúan en una franja posterior vinculada a un pasillo de servicio independiente, evitando interferencias con la actividad clínica.
Espacios complementarios
El área de urgencias se completa con espacios específicos que refuerzan su funcionamiento:
- Sala de radiología y box de yesos, situados en continuidad con el área asistencial.
- Baño adaptado para pacientes.
- Despachos médicos y espacios de apoyo.
- Vestíbulos de independencia, que permiten la sectorización y control en caso de emergencia.
La conexión con la UCI se mantiene mediante un punto de transferencia específico, garantizando la continuidad asistencial en casos críticos.
Sala de espera y ámbito público
La sala de espera se concibe como un espacio flexible dividido en dos ámbitos:
- Una zona de uso continuo 24 horas vinculada a urgencias.
- Un espacio complementario asociado al acceso general del edificio.
Ambos espacios mantienen conexión visual mediante elementos translúcidos y pueden independizarse mediante cerramientos móviles. La iluminación y los materiales refuerzan la sensación de confort, diferenciándose sutilmente del ámbito asistencial.
Confort y humanización
Uno de los objetivos principales del proyecto es la humanización del entorno sanitario, especialmente en un ámbito como urgencias, donde el estrés y la incertidumbre son elevados.
Los espacios se diseñan buscando un equilibrio entre exigencias técnicas y confort ambiental:
- Uso de revestimientos cálidos compatibles con el entorno hospitalario (A), con materiales que garantizan un ambiente interior saludable ya que disponen de propiedades higiénicas antibacterianas, así como certificación A+ sin práctica emisión de compuestos volátiles químicos orgánicos (COV).
- El pavimento de la unidad se constituye con un pavimento de terrazo microgramo, fabricado con componentes naturales. (B)
- Predominio del color blanco como elemento unificador, que potencian el espacio y la difusión de luz natural de los boxes de paciente.
- Introducción puntual de color para facilitar la orientación.
- Cerramientos parcialmente translúcidos que garantizan privacidad sin renunciar a la luz. (C)
- La presencia de luz natural en la mayor parte de habitaciones ayuda a mantener el ritmo circadiano del paciente, facilitando que se oriente en el tiempo y reconozca si es de día o de noche, lo que reduce la desorientación. (D)
Los boxes asistenciales incorporan revestimientos cálidos que reducen la percepción clínica del espacio, generando una atmósfera más cercana al entorno doméstico sin comprometer los requisitos higiénicos.

Dotación y tecnológica, equipamiento y soluciones técnicas
La nueva unidad tiene diseñados, desarrollados en fase de proyecto, ejecutados y en uso varios sistemas de dotación tecnológica en este tipo de unidades como criterio estándar del Hospital CLÍNIC se han implementado.
Las nuevas urgencias disponen de sistema de control RFID, para control de medicamentos, stocks de fungibles y equipos sanitarios. Se dispone de sistema donde la trazabilidad de todos los elementos queda registrada de origen a fin, permitiendo su implementación en SAP y se dispone en todo momento del control de elementos y equipamiento de la unidad.
La unidad dispone de sistema de control de visualización centralizada indirecta de paciente, con monitorización en el control asistencial.
Se han dotado todos los espacios objeto de reforma y actualización de esta obra, de nueva instalación de telecomunicaciones con 12,50 Km de cable de comunicaciones de categoría 6A tipo GigaSpeed así como conectores RJ45 específicos, para dotar espacios asistenciales y administrativos de la conectividad asistencial requerida.
Sistema de puerta corredera para los boxes de accionamiento manual antivandálico, de alta resistencia, funcional y ergonómico. En el proyecto se ha resuelto con un diseño propio, de sistema de guía oculta reforzada, con sistema de rodamientos resistentes y silenciosos. Fabricando un conjunto de estructura de acero tratada y producida industrialmente fuera de la obra a medida, optimizando el proceso de puesta en obra y con un resultado de alta calidad, estética, durabilidad y mínimo mantenimiento.
Diseño y ejecución de nuevo sistema de tratamiento de aire y climatización de la nueva unidad. Con la ejecución de una nueva sala técnica exterior, equipada con climatizadores equipados con filtros absolutos H14, los cuales permiten un tratamiento y un nivel de calidad de aire excelente, que permite preservar la salud de los pacientes i personal de la unidad.
Aplicación en el proceso de diseño de proyecto y ejecución construcción de la obra, en BIM con creación de espacios y trazados de las instalaciones en una obra de rehabilitación integral en un edificio hospitalario de 100 años. Se ha trabajado con BIM 360 analizando y documentando cambios, modificaciones y trazados, mejorando el proceso siendo más eficientes y obteniendo un producto final de mayor calidad.

Conclusión
La reforma de las urgencias del Hospital Clínic en la sede de Plató redefine completamente el funcionamiento de la planta baja mediante una estrategia clara basada en la organización, la centralidad del control asistencial y la mejora de la experiencia del usuario.
El proyecto logra compatibilizar las exigencias técnicas de un entorno hospitalario complejo con una aproximación arquitectónica que prioriza la claridad espacial, la eficiencia funcional y la calidad ambiental, contribuyendo a un modelo de atención más seguro, eficiente y humanizado.
Data del proyecto
Concurso: 2023
Proyecto: 2023-2024
Obra: 2024-2025
Fecha de finalización: septiembre 2025
Ubicación: Planta baja del edifico de la Clínica Plató - Hospital Clínic / Barcelona
Cliente y Promotor: Hospital Clínic de Barcelona
Autor del Proyecto: CANTALLOPS-VICENTE ARQUITECTES
Arquitectos de Proyecto: Lluís Cantallops, Marta Vicente, Jaume Gelabert, Miquel Vaquer, Guillem Serra, Mireia Segura i Guillem Rosal.
Arquitecto de Obra: Guillem Serra Puig i Mireia Segura Soler
Proyecto y Dirección de obra: CANTALLOPS-VICENTE ARQUITECTES
Diseño instalaciones: PGI Engineering & Consulting
Diseño estructural: BERNUZ-FERNANDEZ ARQTS
Infografías: Sabrina Zúñiga Rossetti
DEO + CSS: TRAM – Jaume Fusté
Fotografías: Joan Guillamat
Superficie: 730,75 m2
Número de camas/box: 18 unidades
Constructora: CONSTRUCCIONES BOSCH PASCUAL
Instaladora: FELCA
Presupuesto: 2.170.664,22 € (PEC sin iva)
Gestión de obra:
Direcció d’Infraestructures HOSPITAL CLÍNIC BARCELONA
- J. Andreu Miranda – Responsable de Proyecto
- Estanis Ros -soporte Ingeniería
- Javier Aliaga -soporte Mantenimiento DIEB
Galería de imágenes
Para ver los planos de este proyecto debe iniciar sesión o darse de alta en el portal.
Para poder escribir un comentario debe iniciar sesión o darse de alta en el portal.















